厦门地产情报站
关注
每日及时推送厦门人居楼市、新闻资讯、市场动态、为购房者提供服务和参考!
【开盘项目】榕发悦乐郡A地块
【开盘时间】2022年6月5日
【项目地址】[ 晋安 - 东二环 ] 长乐北路与塔头路交汇处
【开盘形式】加推
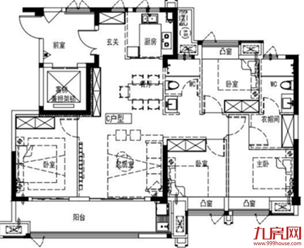
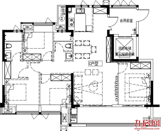
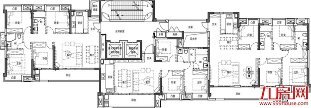
【推售房源】A-1#/26F/ 2T3/1-2F商业/96套,A-2#/26F/ 2T3/1-2F商业/96套,共计138套;
【户型情况】110㎡/3房2卫/44套,131㎡/4房2卫/44套,151㎡/5房2卫/44套,160-221㎡/顶复/6套,合计138套;
【价格】毛坯备案均价35439元/㎡,车位备案均价31万/个;
【优惠】一次性付款99折,开盘当天认购1个车位客户,住宅总价减5万,2个车位住宅减8万;
【付款方式】正常首付;首付10天内齐;
05月03日
03月30日
08月28日
08月08日


【扫一扫关注】


【扫一扫关注】


【扫一扫关注】
最新评论