长自然工(2021)299号
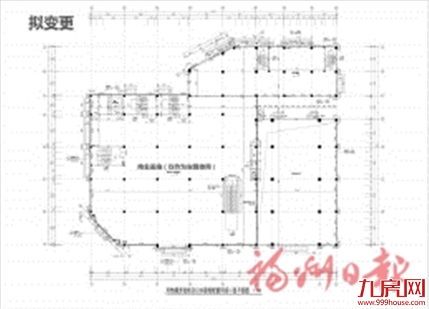
福州新区开发投资集团有限公司建设的望隆新城(滨海新城安置房二期)位于福州滨海新城201省道东侧、尚迁路南侧,现业主申请将A1#楼一层平面图中D轴交4轴至6轴处墙体下移400mm,2轴交D轴至F轴处墙体右移100mm,A1#楼分层平面图中的其他服务设施用房调整为商业设施用房(仅作为安置使用),商业设施用房建筑面积2999.75平方米,公共厕所建筑面积由67.34平方米调整为68.14平方米,高低压变配电房建筑面积由233.2平方米调整为239.52平方米,调整后各项规划指标仍符合土地出让规划条件要求。拟修改的有关事项(含修改前后平面图)详见长乐区政府网站,网址:http://fzcl.gov.cn。
根据《福建省实施<城乡规划法>办法》第五十三条、《福建省城乡规划信息公开公示暂行办法》规定,现予以公告,征求各利益相关人和相关单位的意见。公告时间为2021年8月4日至2021年8月13日。
在公告期限内,本项目利益相关人和相关单位如有异议,可书面向我局工程科反映;如要求听证的,可在公告期限内向我局工程科提出书面申请。无异议、异议不成立或未要求听证的,将依法予以审批。
联系地址:福州市长乐区文武砂街道文松路666号3号楼
联系电话:0591-28922576
附注:
1.附图仅为示意图,以最后审批为准。
2.书面反馈(申请)意见发表时间或邮戳日不应超过公告期的最后一天24:00,逾期视为无效意见。
3.书面意见应注明真实联系人姓名、联系电话、联系地址。
福州市长乐区自然资源和规划局
2021年8月3日














闽公网安备 35020302035470号
最新评论