好消息!
龙岩城区又多了一所公立幼儿园!
2月24日,
龙岩市公共资源交易中心网站发布——
新罗区西城第一中心幼儿园
中标候选人公示(暨中标结果公示)
第一中标候选人为:千易建设集团有限公司
这意味着距离正式开工
又进了一步!
2021年2月24日上午08:00,新罗区西城第一中心幼儿园在龙岩市公共资源交易中心举行开标。
第一中标候选人为:千易建设集团有限公司,投标报价:19733856元;工期要求:总工期为260个日历天,定额工期260个日历天(适用于国家或我省对工期有规定的项目);其中各关键节点的工期要求为(如果有)1、完成至±0.0标高时间为开工之日起第75日历天。2、主体结构封顶时间为开工之日起第120日历天。3、完成外墙装饰及外架拆除时间为开工之日起第190日历天。4、完成合同约定的全部施工内容并通过五方验收时间为开工之日起260日历天。
2月20日,新罗区西城第一中心幼儿园(监理)项目在龙岩市公共资源交易中心开标,中标候选人福建省中福工程建设监理有限公司,中标价244928元 ,施工阶段监理服务期:260日历天,且不应超过施工合同工期。
事实上,
西城中心幼儿园都备受龙岩人民关注
关于进展的问询也是接连不断
关于该园的最新官方回复是:
西城中心幼儿园2022年秋季完工交付使用
2月24日,有市民在龙岩12345平台咨询:西城还没有公立幼儿园,想问下准备开工建设的西城中心幼儿园什么时候能建好?什么时候能开始招生?
龙岩市新罗区教育局回复:西城中心幼儿园2022年秋季完工交付使用,具体招生时间及招生条件,以幼儿园当年的招生通告为准。
2月3日,有市民在龙岩12345平台咨询:即将建设的西城中心幼儿园 去那边读有什么条件么?有没有具体的划片地址?东亚商城小区可以去那边读么?还有之前有个人问了这个幼儿园地址是第二张图片,真正的地址应该是第一张照片是不是?
龙岩市新罗区教育局回复:1.幼儿园属非义务教育,由各园自主招生。目前西城中心园开园时间尚无法确定,具体的招生范围、招生条件届时以幼儿园当年的招生通告为准,符合该园招生条件的适龄幼儿按规定时间报名登记,不符合招生条件的可就近读民办园。
2.西城中心幼儿园的具体地址在苏溪桥头,八角楼旁。(第二张图片中所示即为西城幼儿园地址。)
2020年11月3日,龙岩市自然资源局发布《新罗区西城第一中心幼儿园地块控制性详细规划公布》。
项目选址位于西城单元,西陂路与西安南路交叉口西南侧、陈陂溪北侧,原省三建办公房产(八角楼)及周边地块,校园规划用地面积约0.35公顷,班级数9班,学生人数270人。
去年10月28日,
龙岩市自然资源局发布——
《龙岩市新罗区幼儿园布局专项规划(2019-2030)》
公告显示
未来龙岩主城区共设置幼儿园142所,规划幼儿园班级总数为1684班,幼儿园学位数为5.05万人,可服务人口约126万人,总体能够满足主城区各社区学前教育的需求。其中,保留幼儿园40所、改迁扩建幼儿园11所,已批建20所、规划新建幼儿园71所。
附图:主城区幼儿园布局规划图
再来看看其他新建幼儿园的最新动态!
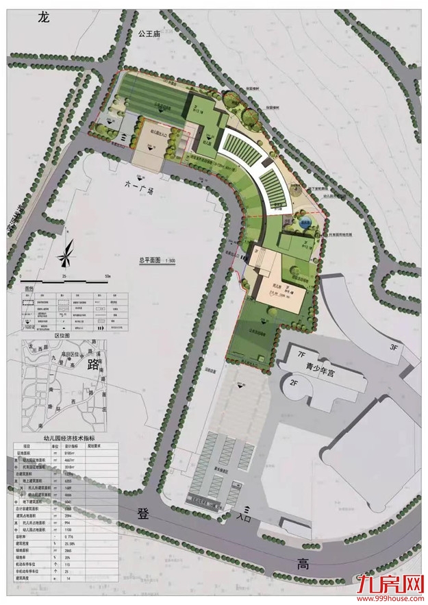
区直机关幼儿园登高分园及托育园二园合一项目
据了解,该项目施工队伍于12月22日勘察现场,项目进展正在有序推进当中。
照片时间为2021年1月
区直机关幼儿园登高分园及托育园二园合一项目位于新罗区登高中路六一广场,项目总投资7780万元,规划用地面积为7886m²,总建筑面积约12452.38m²,建设幼儿园及托育园主体工程及附属工程等项目。
▼项目规划图
作为7个新罗区中心城区应急性教育重点项目之一,该项目总工期为232个日历天,力争2021年秋季开始招生。项目建成后,幼儿园将提供12个班360个学位,托育园将提供8个班240个学位,将有力缓解周边适龄儿童就学难的问题。
建发首院幼儿园
2月23日,有市民在龙岩12345平台咨询:建发首院幼儿园什么时候开园,招生范围除了建发首院的住户,旁边小区的住户可以入园就读吗?需要那些材料
福建雁翔实业发展集团有限公司回复:目前该幼儿园尚未移交我司,但我司正在进行该园二次装修设计。具体开园时间尚不能确定。招生范围和所需材料按届时招生通告为准。
融侨观邸幼儿园
2月23日,有市民在龙岩12345平台咨询:融侨观邸配套幼儿园什么时候能开园?2020年6月份左右就已经招生填资料了,那时候说2020年11月份开园,为何到现在还没通知什么时候开园?
福建雁翔实业发展集团有限公司回复:因竣工验收问题,2020年12月18日融侨观邸幼儿园才正式移交我司进行二次装修。我司于当日立即组织施工队伍进场进行二次装修。目前该园正在装修施工中,因恰逢春节假期和疫情防控等原因,加之二装结束后还需环境创设和通风,具体开园时间尚不能确定。
西陂中心幼儿园
2月1日,有市民在龙岩12345平台咨询:西陂中心幼儿园今年3月即将开园,可是进入幼儿园的必经之路却还是坑坑洼洼,来园离园的道路存在非常大的安全隐患,马上就要开园了,这段道路要什么时候才铺?让孩子可以安全进出呢?
新罗区西陂街道办事处回复:您所反映的路段已纳入2021年城乡民生基础设施建设补短板工程项目,需由区住建局审批后再施工。
东山公立幼儿园
2月1日,有市民在龙岩12345平台咨询:东山这边公立幼儿园是读哪个?
龙岩市新罗区教育局回复:幼儿园属非义务教育阶段,幼儿园自主招生,招生条件详见当年幼儿园门口的招生通告。东山片区国企举办的幼儿园有:董邦小区、世纪榕华小区、恒大绿洲小区的配套小区幼儿园。
白沙镇中心幼儿园溪西分园
12月22日,龙岩市公共资源交易中心发布《白沙镇中心幼儿园溪西分园(监理)(暨中标结果)公示》,监理中标候单位为福建省路海工程管理有限公司。
据悉,白沙镇中心幼儿园溪西分园项目位于白沙镇区东南侧,本项目规划用地面积4699㎡(约7.1亩),建筑面积约4000㎡,主要建设教学综合楼及配套设施等,教学规模9个班,270个学位,项目建安投资估算1300万元,计划2021年7月底完工。
期待这些幼儿园早日建好!
综合来源:龙岩市自然资源局、e龙岩、
龙岩市公共资源交易中心等



























闽公网安备 35020302035470号
最新评论