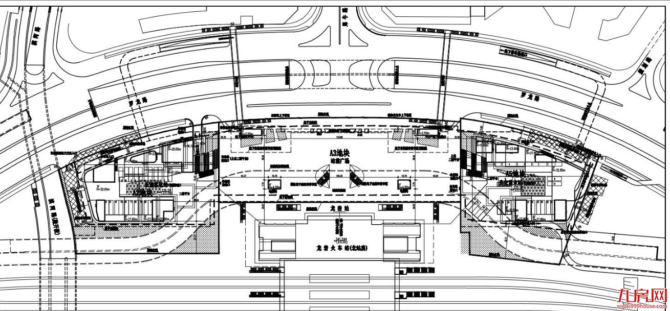
龙岩火车北站公交枢纽项目位于新罗区西陂街道大洋村, 分为A2、A3、A5三个地块。该项目于2017年3月办理建设工程规划许可证(建字第350800201700015号)。
其中A2地块指标为规划用地面积12672.5㎡,建筑密度48%-52%,容积率1.35,绿地率2%-7%;地上计容建筑面积17162.2㎡,地下室建筑面积17195.3㎡(含人防),另架空层面积3780.0㎡;层数为地下二层,地上七层:地上机动车停车位21个(大型车停车位),地下机动车停车位380个;建筑控制高度小于33米。A3地块指标为规划用地面积14811.6㎡,建筑密度2%-5%,容积率0.03,绿地率2%-7%;计容建筑面积435.1㎡,地下室建筑面积24094.3㎡(含人防):层数为地下二层地上一层;地下机动车停车位400个;建筑控制高度小于5米。A5地块指标为规划用地面积11143.2㎡,建筑密度52%-56%,容积率1.44,绿地率7%-12%;地上计容建筑面积16098.6㎡,地下室建筑面积14814.4㎡(含人防),另架空层面积4376.5㎡;层数为地下二层,地上七层;地上机动车停车位24个(大型车停车位),地下机动车停车位294个;建筑控制高度小于33米。
2019年7月,我局比对了审批图纸、龙岩市勘察测绘大队出具的《龙岩市建设工程规划竣工测量报告》,并组织了局法规科、工程科、审批科、权益与开发利用科、测绘大队等相关工作人员对该项目竣工情况进行现场抽查核实。现根据相关规定,将优化调整的部分进行公示:
1.A2、A5地块七层的操作间调整为绿化屋面。原规划为七层功能为餐厅等功能,后因优化功能布局取消此功能且规模减小,故改为绿化屋面,具体情况详见附图。
2.A2、A5地块二层取消送客下站缓冲区。原规划此处为A2地块长途及旅游客运、A5公交站的送客区,后由于交通原因,为不影响龙岩火车北站房的送客,减少此处停车带来的交通压力,且由于龙岩火车北站匝道桥施工实际标高与原图不符,A2及A5地块二层与匝道桥无法正常衔接,故取消在此处送客下站缓冲区,具体情况详见附图。
3.A3地块地下一层北侧消防水池轮廓调整。原规划图纸消防水池容积满足规范要求,后因北侧城市道路调整,故沿着新的可建范围修改消防水池轮廓,具体情况详见附图。
4.A3地块高架桥底两楼梯间平面布置调整。原规划图纸电梯井筒位置位于上方匝道桥主梁下方,影响电梯冲顶净高,故修改位置错开上方匝道桥主梁,同时优化地下车库行车流线,具体情况详见附图。
5.A3地块负一层南侧增加公共卫生间。原规划为下沉广场区域,考虑到换乘乘客以及出租车司机等候时需要,故在A3负一层南侧增加公共卫生间,具体情况详见附图。
现依据《中华人民共和国城乡规划法》《福建省城乡规划信息公开公示暂行办法》,现将本项目调整部分、公共部分进行公示,征求利害关系人意见。公示时间为2019年7月16日至7月24日,共7个工作日。
在公示期限内,利害关系人若有意见,可来信、来访、来电或采取听证等方式向我局反映、发表意见和看法。逾期未提出,视为无异议。龙岩市自然资源局办公地点:龙岩市新罗区莲新南路2号;邮编:364000; 网址: http://zrzyj.longyan.gov.cn/。联系电话:0597-2529137,联系人:范工。
龙岩市自然资源局
2019年7月15日
公共停车位位置示意图









闽公网安备 35020302035470号
最新评论