2018年,国贸天悦热销不断,除连续多月蝉联集美销冠之外,荣膺2018年度厦门市商品住宅单盘总销面积冠军!(数据来源:克而瑞)厦门红盘,实至名归。其成就楼市销售神话的奥秘,正是来源于自身的超高性价比和非凡的产品魅力。国贸天悦二期阔景全明户型,深谙狮子座崇尚宽阔天地的习性,缔造建面约125㎡3室2厅2卫2阳台的理想阔宅,与十二星座中最具权威与支配能力的狮子座的气质不谋而合,彰显品味,敬献王者。
四平八稳 运筹帷幄
方正格局 演绎舒居生活
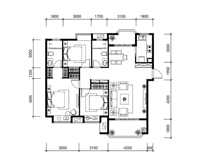
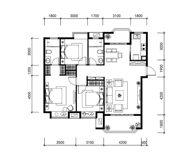
国贸天悦深知户型格局是影响客户居住体验感的首要因素,为呈现上品之作,国贸天悦开发团队深入市场调查经过数百个日夜反复探讨与设计。从居住舒适度出发,匠造大面宽、短进深的方正大宅,让室内空间每一个角落都能够得到充分的利用;同时兼顾中国传统建筑理念,四方格局,集天圆地方精华,引贵气入门,演绎阔绰人生。
(A户型图)
进出之间 不失风度
人性设计 小玄关也有大天地
玄关是进入房屋的缓冲地带,也是反映主人文化精神的“脸面”。市面上很多楼盘只注重玄关保障室内隐私的作用,而往往忽略了玄关区域的空间尺度。国贸天悦,匠心打造约3.5㎡的适阔玄关,保证门户隐私的同时满足全家人更多日常需求,使出门归家更具仪式感,满足大人物大面子。
征程再远 终归人间烟火
明厨设计 创烹饪明朗好空间
厨房是一个家的心脏,烹调美味的同时也是在品味生活。往往大多户型为了客厅、卧室面积的大而忽视了厨房的舒适性。国贸天悦构建占地约6㎡L型全明厨房,可以让您自由施展厨艺,在明媚阳光中烹调幸福滋味。
天生好面子 无大不欢
餐、客厅、阳台直线贯通 采光无限
家族聚会,或与挚友把酒言欢,场地不受限制才尽兴。国贸天悦前瞻规划,将餐、客双厅一体化设计,连通南北双阳台,消除空间局促感,延景入室,通透明亮。大空间,阔格局,气度自然非凡。
其中北向阳台,作为生活阳台所需,空间尺度照样兼顾,放置宽约0.6m的滚筒洗衣机,洗晾空间依旧宽阔;约4.2m*1.8m的南向阳台,作为观景阳台,不仅能容纳6-8人的禅意日式茶桌,还可置放约0.5m宽的室内跑步机,在家即享美景相衬的运动快意。
中国自古以来就是礼仪之邦,社交礼仪中的待客之道尤为重要,作为家中迎宾会客的主要场所。国贸天悦采用双厅相连设计,既能让餐厅与客厅保持联系,又保障了餐厅的明厅设计。匠造约4.2m大面宽的客厅,除能够完美容纳60寸大彩电,给您家庭式影院的绝佳视听享受。客厅连接阔景阳台,静坐在沙发上,即可欣赏到优美园林景观。与亲友欢快用餐时,花香不请自来,美味之中更添几分雅致。与让欢乐不再受限,让生活大有可为。
大人物排场 生活从容不迫
双卫浴干湿分离 高峰期效率翻倍
局促从不是成功者该有的状态。纵观市面众多楼盘格局,多数只考虑卧室的空间尺度,而往往忽略微不起眼但私密性同样非常强的卫浴空间。国贸天悦面面俱到,匠心打造双卫浴空间,充分保护主人隐私同时避免高峰期“拥堵”的日常窘境;约6㎡超大卫浴空间,杜绝转身就碰壁的尴尬。全明设计,淋浴区隔断,干湿分离避免细菌滋生,打造健康生态环境。节约时间成本,大大增加生活效率。
内心柔软 不忘顾家
南北双次卧 圆三代同堂之梦
对于顾家的大人物而言,孩子与老人的居住品质同样不能将就。市面上许多楼盘户型的次卧面积约6-8㎡,房间紧凑,空间利用率低,居住体验感不佳。国贸天悦南北双次卧高规格布局,让三代舒心同住。
据广州日报爆料,65岁以上老人有睡眠障碍的困扰高达88%,国贸天悦为予长辈更舒适的睡眠空间,呈现阳光充裕的南向次卧,贴心考量老一辈的居住习惯,面宽约3.1m,即使放下约1.5m床和两个床头柜,也不妨碍长辈正常活动。
北向次卧拥有近10㎡宽敞空间,除了放得下至少1.5m的床铺之外,还能放下约0.75m*1.3m的常规儿童书桌,富余大空间更能满足孩子的奇思妙想,营造明朗的学习、娱乐、休息于一体的童梦世界。
天生享乐派 偏爱被宠幸
套房式主卧 大尺度献大人物
为了契合大人物的尊崇身份,国贸天悦以墅质高规格,匠造约24㎡的轩阔套房,大气主卧、独立卫生间、步入式衣帽间、朝南观景大飘窗等一应俱全。其中,朝南观景大飘窗,拥揽城市繁华胜景之外,也让夫妻静享甜蜜二人时光。更懂优生活高品质,将步入式衣帽间置于卫生间和主卧之间,既保证了卧室与卫生间直通,也方便衣物、大件棉被的置放,同时也是太太精致装扮的主场。人性化的设计将睡眠、装扮、洗漱区等一一分开,同时主卧与次卧分而不离,方便照顾老小,又互不打扰。
空间阔绰,生活无限,和乐无边
国贸天悦如此优悦户型
难怪高眼光的狮子座都能为之怦然心动
你呢?心动不如马上行动!
国贸天悦2019年新年开门红利
1月6日下午即将重磅出击,敬请期待!
(详询现场置业顾问)
往期精选
国贸天悦丨毫厘米间的工法艺术,守护生活的每一寸美好
教科书般的园林设计,让双子座都不禁怦然心动
【国贸天悦】为何强势攻占厦门楼市头条? 这些细节让你秒懂!
国贸天悦
集美城心·地铁1号线·学府臻宅
臻选高端优质价值品牌
考究人性关怀细节,打造舒适生活美学
免责声明:上述地铁、学校等有关信息为开发商根据2019年1月前政府规划文件及公众媒体得知,非开发商的承诺。项目周边情况可能因城市发展、建设等原因发生变化。具体信息以合同约定及政府最终审批为准。本资料发布时间为2019年1月,在法律允许内我公司保留对宣传资料修改的权利,敬请留意最新资料。
国贸地产三十一载
以诚心
筑未来
国贸地产还将诚心打造系列专属活动
为您汇聚世间所有美好,只为遇见最好的自己
联系我们
国贸地产品质服务监督热线
400-886-5566
(工作时间:9:00-12:00 14:00-17:30)

















闽公网安备 35020302035470号
最新评论