本网从厦门市环保局获悉,厦门市轨道交通2号线五缘湾南站地块配套项目环评于今日公示,项目用地面积57747.105㎡、总建筑面积149400㎡。
项目周边环境现状示意图
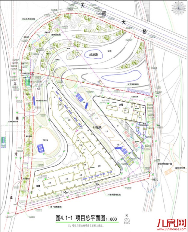
项目总平面图
公示显示,五缘湾南站轨道交通用地位于厦门本岛东北部五缘湾核心片区,湾区西侧,天圆大桥西侧桥头。周边毗邻钟宅畲族特色文化村庄、湿地公园、五缘湾游艇港等。项目用地面积 57747.105㎡,其中 A1 地块 (建设用地)用地面积 35185.127㎡,A2 地块(公共绿地)用地面积 22561.978㎡。A1 地块包括1#楼及2#楼两栋楼,其中,1#楼为地上 7-13 层、地下2 层建筑,2#楼为地上9-12 层(含局部一层裙房)、地下2 层建筑。1#楼及2#楼地下二层、地 下一层局部及地上一层均设有商业店面,二层以上为酒店式公寓。
此外,该项目总建筑面积149400㎡,计容建筑面积88000㎡,地上总建筑面积(计容) 88000㎡,其中轨道交通配套用房1(商业) 面积 12656.40㎡,轨道交通配套用房2 (住宅)面积为75000㎡,公厕建筑面积 64㎡,地铁用房建筑面积(轨道1 号出入口及其他地铁附属部分) 279.60㎡。地下建筑面积(不计容) 61400㎡,其中车库、设备用房39001.10㎡,轨道交通配套用房1(商 业) 19998.90㎡,地铁用房地下部分(轨道 1 号地铁出入口、活塞风井及风道、新风井、排风井及风道、疏散梯及消防泵房) 2400m2。容积率(不含公园用地) 2.5,建筑密度(不含公园用地) 60%,绿地率(不含公园用地) 10%。










闽公网安备 35020302035470号
最新评论